Hoe maak je het? Routes met tijd en aantal – 1
Door Erik van de Beek op Jul 4, 2022 1:30:00 PM

Voor een beurs werd mij gevraagd om een dashboard te maken rondom het thema zorg, ik koos voor een ontwerp waarin routes met tijd en aantal bewegingen de hoofdrol speelt, maar hoe maak je het? (Dit is het eerste blog van een reeks, zie onderstaand).
Om dit workbook te maken dient u de volgende volgorde aan te houden. Eerst dient u data aan te maken, vervolgens een afbeelding te plaatsen en daarna maakt u het worksheet. Dit blog bestaat daarom uit vier delen:
- Een afbeelding inmeten en de data aanmaken;
- een afbeelding inlezen;
- de data ‘plotten’ of projecteren en routes aanmaken;
- de factor tijd toevoegen.
Voor het workbook kunt u hier klikken of in het onderstaande embedded workbook klikken.
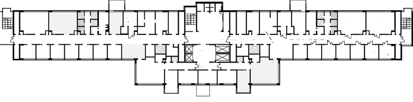
De afbeelding 1
Allereerst is er een afbeelding nodig, in dit workbook heb ik gekozen voor een (vrij te gebruiken) afbeelding van een plattegrond van een Noord-Amerikaans ziekenhuis uit de eerste helft van de 20e eeuw.
Het idee van het workbook was om routes weer te geven in een fictief woonzorgcomplex. De routes lopen van de centrale hal in het midden (waar het trappenhuis en de liften zijn) naar de zalen uiterst rechts en link (de eetzalen in mijn voorbeeld/verbeelding).
Meten
Allereerst moeten er start en eindpunten bepaald worden. Om de lijnen met een ‘knik’ te kunnen maken zijn vier punten per route nodig. Deze punten noem ik voor nu de coördinaten. Deze punten moeten ingemeten worden. Dit dient u te doen zodat data aan de punten gekoppeld kan worden.
Het meten heb ik gedaan met het oude vertrouwde Paint. Als u uw afbeelding opent met Paint kunt u linksonder zien wat de coördinaten zijn. Met de muis en de pijltjes op het toetsenbord kan de cursor verplaatst worden.
Noteer de punten in een matrix of bestand dat u het beste uitkomt. Houd er rekening mee dat in Paint het nulpunt linksboven zit en bij Tableau zoals bij de wiskunde. (Op de kruising van de x-as en y-as (vaak linksonder).) Aangezien de route vier punten/coördinaten heeft moet er ook een volgorde aangegeven worden. Het startpunt is 1, de tussenpunten zijn 2 en 3 en het laatste punt is 4. Coördinaten moeten soms omgerekend worden (zie onderstaand):
De data 1
Het idee achter de looproutes is om te zien hoeveel mensen hoe laat en op welke dagen van de centrale hal (met lift en trappenhuis) naar de eetzalen lopen. Hiervoor hebben we de volgende ‘feiten’ nodig.
- Aantal mensen dat een route loopt;
- Op welke tijden lopen de mensen de route;
- De coördinaten van de route;
Coördinaten
Het uiteindelijke overzicht moet er zo uitzien.
Om het eenvoudig te houden heb ik ervoor gekozen om het aantal bewegingen per tijdstip gelijk te houden. Met echte data kan dit natuurlijk wel verschillend zijn.
Om de bovenstaande tabel te creeëren heb ik gebruik gemaakt van een scaffold gemaakt. In de onderstaande afbeelding is te zien dat ik in Prep twee tabellen met data voor februari en maart gemaakt heb en deze gekoppeld heb aan het bronbestand (met de coördinaten):
In de basis heb ik een document met enkel datetime-waarden en aantal bewegingen gekoppeld aan de looproutes (de route naar links heb ik als ‘voorkeursroute’ bestempeld voor het contrast, de route links is ‘verzwakt’ door het aantal bewegingen te vermenigvuldigen met 0,6). Uiteindelijk gaat het erom dat u, wanneer u dit nabouwt, zorgt dat voor elke tijdeenheid een koppeling is met de route. Bijvoorbeeld: voor elk uur van de dag moet een aantal bewegingen vermeld zijn dat gekoppeld kan worden aan alle vier de coördinaten. Houd er rekening mee dat dit het dataset flink vergroot. Als er uren ontbreken zal dit in de visualisatie een ‘NULL’ weergeven.
Het blog gaat verder in deel twee, klik hier voor dit tweede blog over “Hoe maak je het? Routes met tijd en aantal?”.
Bronnen
Foto afkomstig van Unplash, fotograaf: Sylvan Gllm.
Mogelijk ook interessant
Gerelateerde blogs

Hoe maak je het? Routes met tijd en aantal – 2

Hoe maak je het? Routes met tijd en aantal – 3


